Projekt kuchni 3D w Warszawie
Przygotowujemy projekt kuchni 3D na podstawie dokładnego pomiaru, układu ścian i planowanej zabudowy. Uwzględniamy AGD, gniazdka, oświetlenie, wodę, odpływ i miejsca, które trzeba przygotować przed montażem.
Projekt kuchni 3D w Warszawie
Przygotowujemy projekt kuchni 3D na podstawie dokładnego pomiaru, układu ścian i planowanej zabudowy. Uwzględniamy AGD, gniazdka, oświetlenie, wodę, odpływ i miejsca, które trzeba przygotować przed montażem.
Projekt kuchni — to nie tylko obraz. To Twoja instrukcja do remontu.
Co zawiera projekt?
Projekt kuchni to nie tylko wizualizacja 3D. Przygotowujemy układ zabudowy, rozmieszczenie AGD, zlewu, gniazdek, oświetlenia, wody i odpływu. Dzięki temu ekipa remontowa wie, co przygotować przed montażem kuchni.
Kiedy potrzebny jest projekt?
Projekt przydaje się przed remontem, gdy trzeba dobrze rozmieścić instalacje, gniazdka, płytki i sprzęt AGD. Widzisz wcześniej układ kuchni i unikasz poprawek po montażu.
Nie jesteś gotowy zamówić?
Możemy przygotować projekt jako osobną usługę. Jeśli później zamówisz kuchnię u nas, koszt projektu odliczymy od realizacji.
Projekt kuchni to początek wspólnej pracy. Nie rysujemy tylko obrazków.
Pomagamy Ci uniknąć błędów.
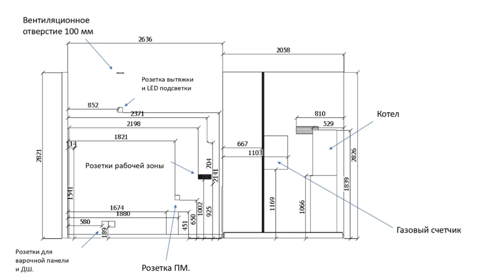
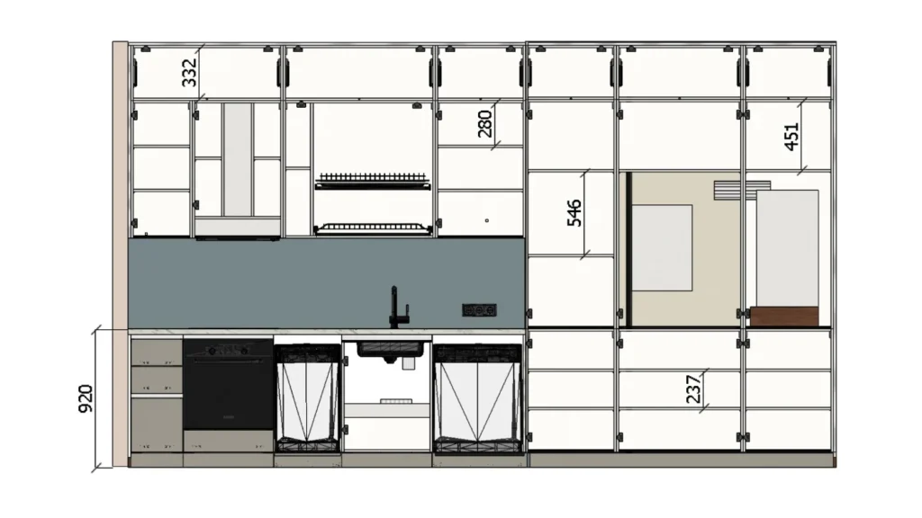
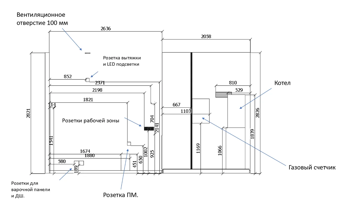
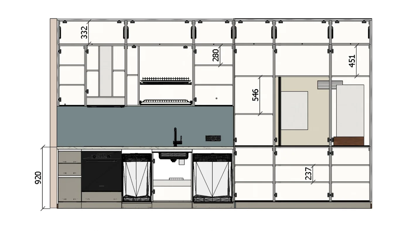
Tak wygląda typowy projekt kuchni
Dlaczego Dr Kitchen i jak to robimy
Projektujemy i wykonujemy kuchnie na wymiar w 6 etapach — od pomiaru i projektu 3D po produkcję, montaż i odbiór.
Od początku wiesz, jak wygląda proces, co wchodzi w cenę i za co odpowiadamy.
1
Bezpłatny wyjazd projektanta po Warszawie
Przyjeżdżamy z laptopem i walizką wzorników, wykonujemy dokładny pomiar i omawiamy układ, materiały oraz budżet. Już na miejscu widzisz kierunek projektu.
2
Projekt 3D dopasowany do wnętrza
Na podstawie pomiaru przygotowujemy projekt 3D dopasowany do ścian, wnęk, okien, instalacji i Twojego stylu. Widzisz, jak kuchnia będzie wyglądać przed produkcją.
3
Jasna wycena bez zgadywania
Po ustaleniu projektu i materiałów otrzymujesz konkretną wycenę. Od razu wiesz, za co płacisz i z czego wynika koszt kuchni.
1
Bezpłatny wyjazd projektanta po Warszawie.
Przyjeżdżamy z laptopem i walizką wzorników, wykonujemy dokładny pomiar i od razu pokazujemy możliwy układ kuchni. Już na pierwszym spotkaniu widzisz materiały, kierunek projektu i realny budżet.
2
Projekt 3D dopasowany do wnętrza
Na podstawie pomiaru przygotowujemy projekt 3D dopasowany do ścian, wnęk, okien, instalacji i Twojego stylu. Widzisz, jak kuchnia będzie wyglądać przed produkcją.
3
Jasna wycena bez zgadywania
Po ustaleniu projektu i materiałów otrzymujesz konkretną wycenę. Od razu wiesz, za co płacisz i z czego wynika koszt kuchni.
4
Produkcja zgodnie z projektem
Po zatwierdzeniu projektu przekazujemy kuchnię do produkcji. Wszystkie elementy wykonujemy zgodnie z ustalonym układem, wymiarami i wyposażeniem.
5
Montaż bez chaosu i przypadków
Montujemy kuchnię na miejscu, sprawdzamy dopasowanie elementów i pilnujemy jakości wykonania. Otrzymujesz gotową realizację przygotowaną do użytkowania.
6
Odbiór i rozliczenie po montażu
Najpierw odbierasz gotową kuchnię i sprawdzasz efekt końcowy. Końcowe rozliczenie następuje po wykonaniu i montażu.
4
Produkcja zgodnie z projektem
Po zatwierdzeniu projektu przekazujemy kuchnię do produkcji. Wszystkie elementy wykonujemy zgodnie z ustalonym układem, wymiarami i wyposażeniem.
5
Montaż bez chaosu i poprawek
Montujemy kuchnię na miejscu, sprawdzamy dopasowanie elementów i pilnujemy jakości wykonania. Otrzymujesz gotową realizację przygotowaną do użytkowania.
6
Odbiór i rozliczenie po montażu
Najpierw odbierasz gotową kuchnię i sprawdzasz efekt końcowy. Końcowe rozliczenie następuje po wykonaniu i montażu.
20 lat doświadczenia w branży meblarskiej. Sprawdzony proces, kontrola jakości i pełna odpowiedzialność za wykonanie kuchni na wymiar.
Jesteśmy w branży meblarskiej od 20 lat.
Zespół doświadczonych rzemieślników. Kontrola na każdym etapie. Nie uczymy się na Was.
Stosujemy sprawdzone rozwiązania – z dokładnym wyliczeniem, kontrolą i pełną odpowiedzialnością.
Fabryczna jakość. Gwarancja 2 lata.
Płatność dopiero po montażu. Odpowiadamy za efekt.
Nie musisz już wybierać między pięknem a funkcjonalnością. Zróbmy kuchnię, która będzie cieszyć przez 10 lat.